Описание
Коммерческое помещение на продажу
Адрес: ул. Салиева / Ауэзова
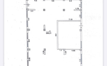
Площадь: 269 м²
Цена: 1150 $/м²
Просторное open space-помещение, которое легко адаптировать под любой формат бизнеса. Высокие потолки, большие витринные окна и капитальные стены создают комфортные условия для работы и привлечения клиентов.
Характеристики и преимущества:
Первый этаж, отдельная входная группа
Витражные двери и витринные окна на фасаде
Просторная планировка, удобная для зонирования
Подведены все коммуникации, есть стояки/разводка
Несколько возможных зон под санузлы и подсобные помещения
Техпаспорт на руках
Подойдет под:
магазин, офис, салон красоты, шоурум, фитнес-центр, обучающий центр и другие виды деятельности.
Кыргыз Недвижимость
Кыргыз Недвижимость
ID: 72099




