ID объекта : 62516
Тип: Элитка
Этаж: 5/16
Цена: $120 000
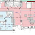
Размер объекта: 97 м2
Комнат: 3
Cостояние: Сдан ПСО
Коммуникации:
Автономное отопление;
Все коммуникации центральные;
Газ;
Центральная канализация;
Адрес: Советская
Район: Юж.Магистраль / Советская
Описание
Срочно продается! 3ком квартира
📌Район: Асанбай
📌Дом: Элитный дом бизнес класса (Крейсер)
📌Этаж: 5/16
📌Площадь: 97,27м2
📌Комнат: 3
📌Документы: Красная книга, ДДУ
📌Вид с окон выходят на Горы (Юг)
📌Отопление: Автономное, центральные коммуникации
📌Материал стен: Кирпич
📌Застройщик: Эмарк Групп
✅Дом сдан ПСО, дом заселён на 30%
✅Развитая инфраструктура, в шаговой доступности есть все необходимое для комфортного проживания (Рестораны, больницы, школы, дет сады, салоны красоты, Торговые центры, Парк и многое другое)
Цена: 120.000$
Кыргыз Недвижимость
ID: 62516










