ID объекта : 64789
Тип: Элитка
Этаж: 7/13
Цена: $132 356
Размер объекта: 95 м2
Комнат: 3
Cостояние: Строящийся ПСО
Коммуникации:
Все коммуникации центральные;
Адрес:
Район: Центр города
Описание
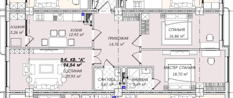
🏠 Продается 3-комнатная квартира в ЖК Asman Residence (Блок А)
📍 Блок А, 5 этаж из [уточните этажность, например: 12]
📐 Площадь: 94,54 м²
💲 Цена: 1400 $/м² → 132 356 $
📆 Сдача дома:
По договору — 2 квартал 2025 г.
Фактическая сдача — 4 квартал 2025 г.
🛋 Описание:
Квартира сквозная, с ориентацией запад — восток
Просторная планировка: 3 комнаты, 2 санузла, кухня-гостиная
Современные лифты, чистовая отделка, охраняемая территория
Престижный жилой комплекс в районе с развитой инфраструктурой
✅ Преимущества ЖК Asman Residence:
Современная архитектура и продуманные планировки
Детские и спортивные площадки
Паркинг и видеонаблюдение
Удобное расположение: рядом школы, магазины, остановки
Кыргыз Недвижимость
ID: 64789


