ID объекта : 71857
Тип: Элитка
Этаж: 12/1
Цена: $95 230
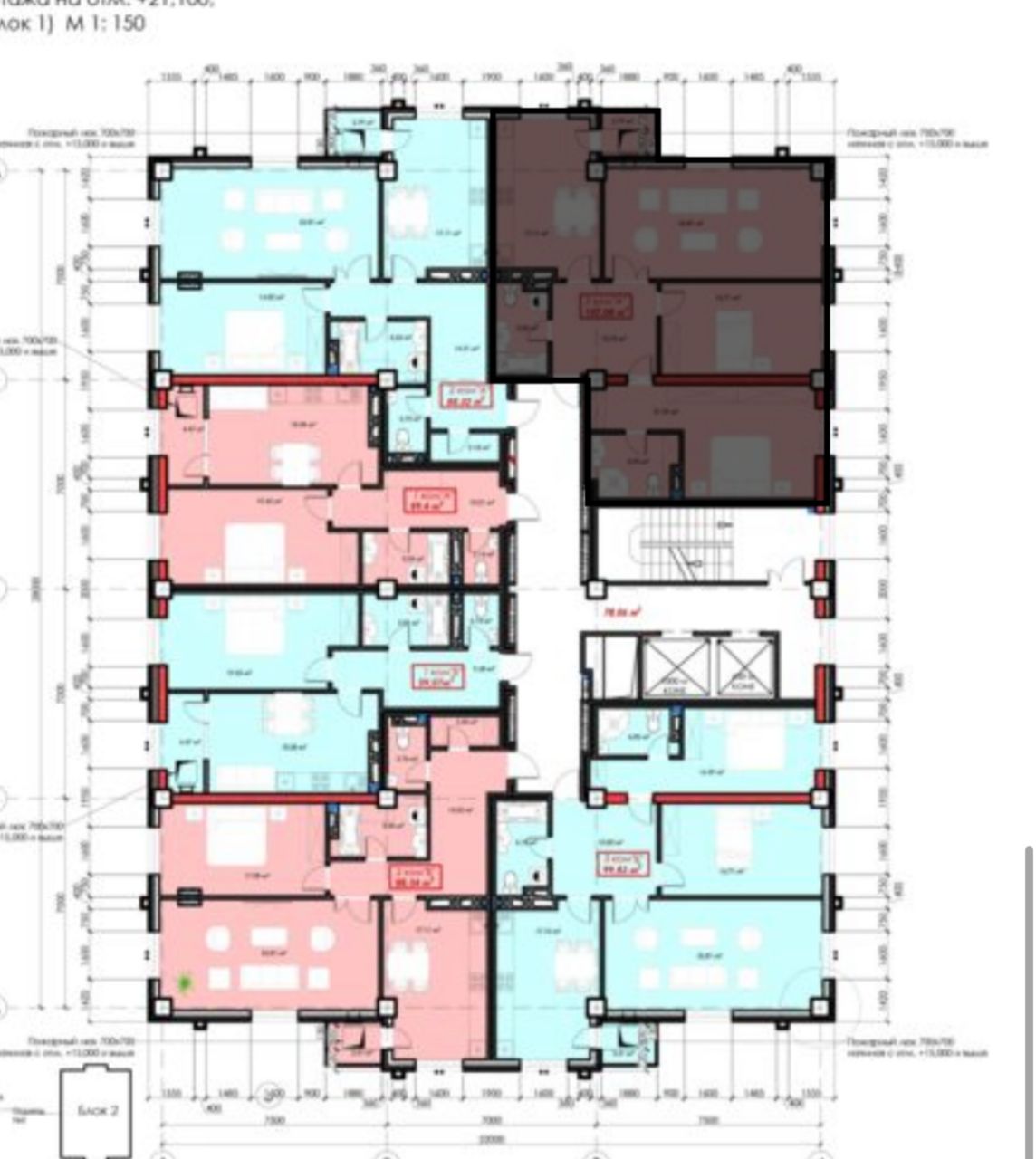
Размер объекта: 107 м2
Комнат: 3
Cостояние: Строящийся ПСО
Коммуникации:
Газ;
Адрес: Улица Байтик баатыра, 1ж
Район: Юж.Магистраль / Советская
Описание
Продается 3хкомнатная квартира
-ЖК «Южные Ворота» Elite House
-Магистраль/Советская
-107квм
-12/18 этаж
Цена:890$ за квм
Кыргыз Недвижимость
Кыргыз Недвижимость
ID: 71857



