Элитка, 2 ком, 82 м2, этаж 4/14, Сост: Строящийся ПСО

$650 / 56 843сом
,

ID: 65388
В понравившиеся
Срочная продажа
Фото
Карта

Обзор

  • Опубликовано:
  • 24.09.2025 14:15
  • 82 м2
ID объекта : 65388
Тип:
Этаж: 4/14
Цена: $650
Размер объекта: 82 м2
Комнат: 2
Cостояние: Строящийся ПСО
Коммуникации: Газ;
Адрес:
Район: Таш-Рабат торговый центр

Описание

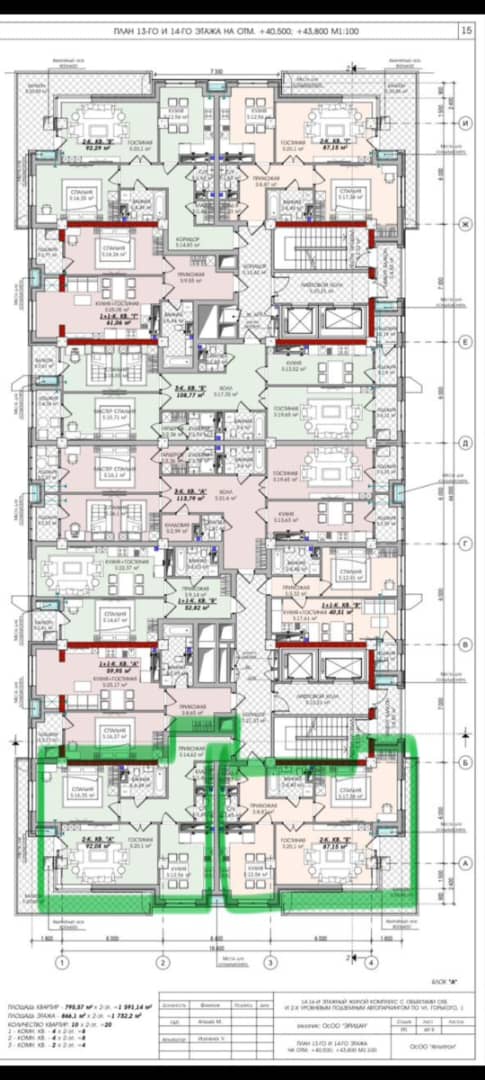
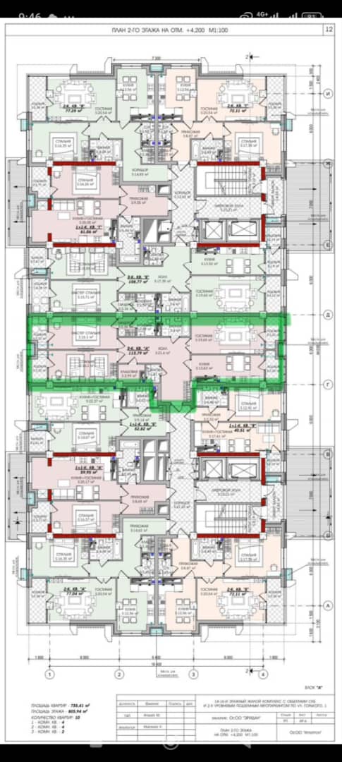
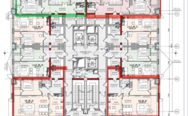
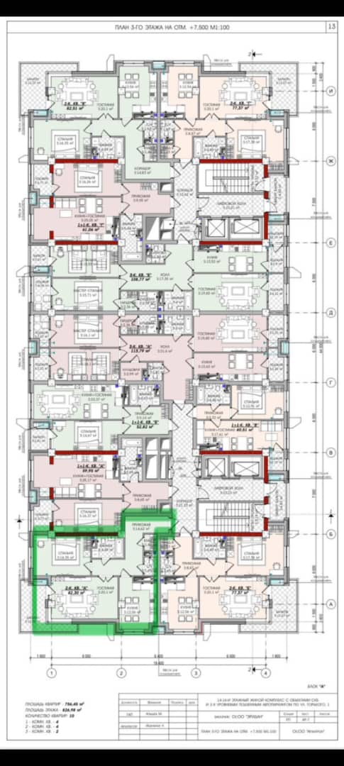
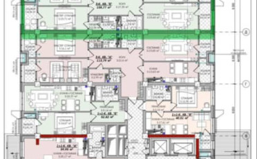
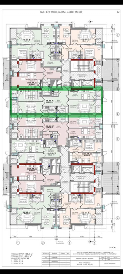
🏗️ Продаются 2- и 3-комнатные квартиры от застройщика "Манас Trade"
🏢 ЖК "Анкара"
📍 Локация: ул. Горького, 1 (ориентир — рядом BBQ Кекеева)
Сдача под ПСО 3 квартал 2028 года  

📐 Площади квартир:
▪️ 82.30 м²
▪️ 84.55 м²
▪️ 84.95 м²
▪️ 87.15 м²
▪️ 92.08 м²
▪️ 92.29 м²
▪️ 108.77 м²
▪️ 113.79 м²
▪️ 126.52 м²
▪️ 140.97 м²

🔌 Все коммуникации — центральные
🔥 Отопление — газовое

📄 Документы:
✔️ Красная книга
✔️ ДДУ (договор долевого участия)

🚀 Старт продаж!
💰 Цена от 650 $ / м²

📞 Успейте забронировать — количество квартир ограничено!

Кыргыз Недвижимость
ID: 65388

Похожие объявления

Об этом объекте знает всё:

Асель Акышова

Специалист по недвижимости

Свяжитесь со мной

Запланировать показ?