ID объекта : 65425
Тип: Элитка
Этаж: 10/14
Цена: $1 300
Размер объекта: 80.45 м2
Комнат: 2
Cостояние: Сдан ПСО
Коммуникации:
Адрес:
Район: Горького/Алматинка
Описание
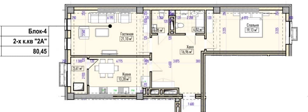
ЖК - NOVA City
Район ГОрького /Алматинка
Этаж - 10
Кол-во комнат - 2
Площадь, м2 - 80.45
Жилая площадь, м2 - 40.23 Площадь кухни, м2 - 13.28
Кыргыз Недвижимость
ID: 65425

