Элитка, 2 ком, 79 м2, этаж 6/17, ж/к Керемет Резиденс, Сост: Строящийся ПСО

$98 000 / 8 548 540сом
, Островская 136а /Айни

ID: 67980
В понравившиеся
Срочная продажа
Фото
Карта

Обзор

  • Опубликовано:
  • 13.10.2025 15:09
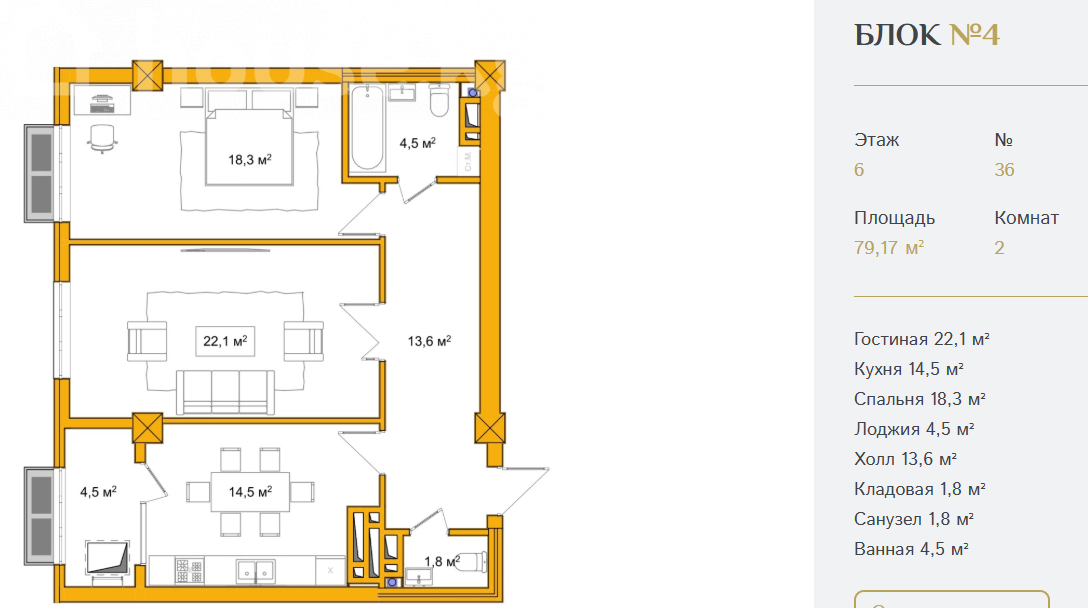
  • 79 м2
ID объекта : 67980
Тип:
Этаж: 6/17
Цена: $98 000
Размер объекта: 79 м2
Комнат: 2
Cостояние: Строящийся ПСО
Коммуникации:
Адрес: Островская 136а /Айни
Район: Джал мкр

Описание

🏢 Продается 2-комнатная квартира в ЖК KEREMET RESIDENCE
🏗️ От застройщика Имарат Строй
📍 Ул. Островская 136а / Айни, рядом со сквером "Аллея Журналистов"
📌 Не угловая квартира

Бизнес-класс проект
🏙 4 блока по 17 этажей
🧱 Газоблок, качественное строительство
📕 Красная книга
🗓 Сдача — 4 квартал 2026 года

📞 Звоните для подробностей и бронирования!

Кыргыз Недвижимость 

Кыргыз Недвижимость
ID: 67980

Похожие объявления

Об этом объекте знает всё:

Айзат Темиралиева

Свяжитесь со мной

Запланировать показ?