ID объекта : 76456
Тип: Элитка
Этаж: 1/10
Цена: $138 750
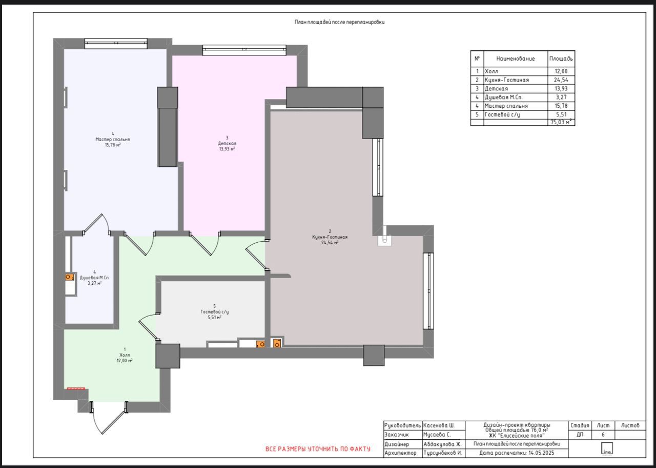
Размер объекта: 75 м2
Комнат: 2
Cостояние: Сдан ПСО
Коммуникации:
Автономное отопление;
Адрес: Улица Куттубаева, 19 стр
Район: Асанбай мкр.
Описание
Продается просторная 3-комнатная квартира
🏡ЖК «Елисейские Поля»
🏡СК «Авангард Стиль»
📍 1 этаж из 10
📐 Общая площадь — 75 м²
🏗 Сдан ПСО — отличная возможность сделать ремонт под себя
Светлая квартира с удобной планировкой и большими комнатами ✨
Благоустроенная территория, комфортная среда для жизни и выгодная инвестиция 📈
💰 Цена: 1850 $ за м²
Кыргыз Недвижимость
Кыргыз Недвижимость
ID: 76456




