Элитка, 2 ком, 110 м2, этаж 14/14, Сост: Евроремонт

$127 000 / 11 078 210сом
, Тыналиева

ID: 67234
В понравившиеся
Срочная продажа
Фото
Карта

Обзор

  • Опубликовано:
  • 08.10.2025 10:29
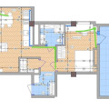
  • 110 м2
ID объекта : 67234
Тип:
Этаж: 14/14
Цена: $127 000
Размер объекта: 110 м2
Комнат: 2
Cостояние: Евроремонт
Коммуникации:
Адрес: Тыналиева
Район: Джал мкр

Описание

Продаю 2-комн. квартиру в мкр. Джал


 

Современная квартира с дизайнерским ремонтом в одном из востребованных районов Бишкека — микрорайон Джал.

📍 рядом с мечетью. Благоустроенный район с развитой инфраструктурой — всё необходимое в пешей доступности.

 

🏙️ Этаж: 14 из 14

📐 Общая площадь: 110 м² с террасой

🏢 С террасы открывается панорамный вид на горы

🛋️ Ремонт: дизайнерский, выполнен из качественных материалов

📄 Документы: ДКП, техпаспорт

 

💰 Стоимость: 127 000 $

Идеальный вариант для тех, кто ценит простор, комфорт и стиль в интерьере.

📞 Запишитесь на просмотр и откройте для себя новый уровень комфорта.

Кыргыз Недвижимость
ID: 67234

Похожие объявления

Об этом объекте знает всё:

Раушана Толобаева

Свяжитесь со мной

Запланировать показ?