ID объекта : 71404
Тип: Элитка
Этаж: 15/16
Цена: $1 130
Размер объекта: 61 м2
Комнат: 1
Cостояние: Строящийся ПСО
Коммуникации:
Все коммуникации центральные;
Газ;
Центральная канализация;
Адрес:
Район: Асанбай мкр.
Описание
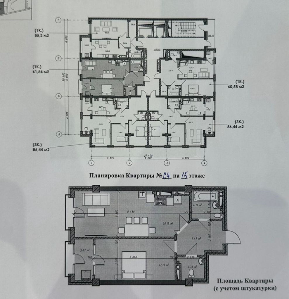
Продаю 1-ком кВ 61.64 м ЖК Lokal 14/16
ПСО весной 2026 года
ул. Жукеева-Пудовкина / ул. Аалы Токомбаева вид из окна: парк дружбы Кыргызстана и Азербайджана
дом ПРЕМИУМ КЛАССА по цене эконом;
Мы продаем по 1130$ / м
СК продает по 16000$
цена
Цена
Кыргыз Недвижимость
ID: 71404

