ID объекта : 67270
Тип: Элитка
Этаж: 12/12
Цена: $58 000
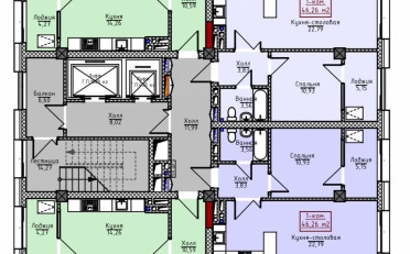
Размер объекта: 46.26 м2
Комнат: 1
Cостояние: Строящийся ПСО
Коммуникации:
Все коммуникации центральные;
Адрес: Кийизбаева
Район: Восток-5
Описание
Продается 1комнатная квартира
СК Дельмар Групп
ЖК Санхаус 2
12/12 + технический этаж.
Площадь: 46,26м2.
Срок сдачи ПСО: 4 квартал 2025.
Коммуникации: центральные. электричество до розеток, отопление до радиаторов.
Цена 58.000$
Кыргыз Недвижимость
ID: 67270


